744 S. Broadway Los Angeles, CA 90014 | map |
The Globe Theatre pages: history | vintage exterior views | recent exterior views | lobby areas | recent auditorium views | earlier auditorium views | attic | backstage | basement | garland building | early Morosco programs |
A section view through the lobby areas from the Morgan, Walls & Clements archives at the Huntington Library. See
the full drawing. It's on the Huntington's site as
drawing #3770. We're looking south with Broadway on the right. Above the lobby it's the second floor of the office building. The stairs over on the left go up to the 1st balcony (but not the 2nd) or down to the lounges and restrooms.
The red line marks the row of columns at the back of the main floor
seating area. Originally this foyer area was open with a partial-height standee
rail. When the theatre went to films this was replaced with doors and a
full height wall to have a sound-isolated lobby. The green line
indicates the original entrance door location. The blue line indicates
the later door location. Note the boxoffice window in the second bay in
from the street. It was later replaced with an island boxoffice out at
the sidewalk.
Another view of the south wall of the lobby. Note the entrance door location on the left between bays one and two. That's the boxoffice in the second bay in from the street. This is from
drawing #3776.
A closer look at the boxoffice area. Note that the wall panels are scagliola, not marble.
On the left it's a half-view of the portal separating the lobby from the foyer at the back of the main floor. On the right we're back a bit closer to Broadway with a half-view of the entrance doors. This is from
drawing #3776 in the Huntington's collection.
A detail of the ticket lobby/outer lobby ceiling. It's also from
drawing #3776.
Plans for the building on the Huntington's website are in two batches. Batch #1 starts with a basement plan,
drawing #3760. You can page forward to the end of that group,
drawing #3781, ceiling details. Batch #2 starts with
drawing #3819 and ends with
drawing #3847, a section drawing with a couple of fan details. Thanks to Mike Hume for locating these. Visit the
Index to the MW&C Drawings that he's been compiling for his Historic Theatre Photography site. There's also an index by Mike Callahan on
Internet Archive.
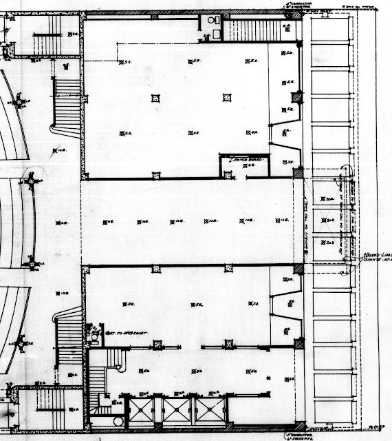
A detail from the Morgan, Walls & Morgan 1st floor plan showing the lobby areas. Also see the full drawing. It's on the Huntington Library's website as drawing #3843.
Note the boxoffice recessed into the south wall of the ticket lobby. There are retail spaces either side of the theatre entrance. That's the office building lobby at the bottom of the image. The open standee area/foyer at the
back of the seating area has stairs on either end to get to the 1st
balcony. Later that area
was walled in and doors added at the head of the aisles.
A reflected ceiling plan of the foyer at the back of the main floor. It's from
drawing #3781.
A detail of the foyer ceiling's center panel. It's also from
drawing #3781.
The ticket lobby:
1940 - Broadcasting the "Royal Crown Newsreel Theater of the Air" from the radio booth in the Newsreel Theatre's ticket lobby. It's one in a set of six photos in the
USC Digital Library collection taken by Vannice and Andy from the Dick Whittington Studios. The client was the local Nehi/Royal Crown distributor.
1940 - Another shot from the USC set. Note the customers looking at the news updates on the wall to the left of the radio room window: "Trans-Radio Press Bulletins. Direct from war-torn Europe and the entire world."
early 1940s - This ticket lobby view is a detail from a photo from the collection of Jack Tillmany that's now in the
Tom B'hend-Preston Kaufmann Collection, part of the AMPAS Margaret Herrick Digital Library Collections.
The island boxoffice of course wasn't original. Nor was the position of the entrance doors. They were originally much deeper in the space, providing for a long open-air lobby space similar to the configuration that still exists at the Palace.
1945 - A detail from a photo by Harry E. Surerus that gives us a better look at the position of the entrance doors in this era. The
full image includes a nice view of the marquee. The photo was once in the collection of Tony Heinsbergen. Thanks to Tom Ohmer for finding it in the Tom B'hend-Preston Kaufmann collection. It has also made appearances on the Facebook page
Photos of Los Angeles and with a May 2014
Curbed L.A. article.
1976 - The ticket lobby all dressed up as a burlesque theatre for the Peter Hyams film "Peeper" (20th Century Fox).
1976 - The look inside in the 70s as seen in "Peeper." That's Michael Caine dashing in from Broadway
trying to rescue Natalie Wood from her kidnapper. See the
Historic L.A. Theatres in Movies post for more shots from the film.
1990s - The theatre's entrance repurposed as retail space. The image is a detail from a photo on the fine
Broadway Theater Tour on the website of Grace Market Research.
2013 - The ticket lobby ceiling after the retail tenants had been kicked out and the dropped ceiling was removed. Thanks to Hunter Kerhart for his photo. Keep up
with his recent explorations:
HunterKerhart.com |
on Flickr
For decades this 1913 vintage
plasterwork had been hidden. The outer area that became a reduced size ticket lobby in
the 30s got a lowered ceiling first. With the retail conversion in the
late 1980s, a dropped ceiling was added in the rest of the space and it
was walled off from the auditorium. When the theatre was used as a club
the entrance was via the alley. Part of the $5 million renovation
program begun in 2013 by Erik Chol was to open this space and give the
theatre a presence on Broadway once again.
2013 - The south wall. At the extreme left are the house right stairs to the
1st balcony. Even before this was covered by drywall as part of the retail
conversion, the lobby had seen a lot of renovations over the years.
Photo: Hunter Kerhart
Some of the bays on
this side are plaster, some drywall. The ones closest to Broadway have a
scagliola finish simulating marble -- perhaps they were original. There
also was a bit of a grayish/bluish deco wallpaper design surviving.
2013 - The north wall. Note the sprinkler heads hanging down at the level of
the dropped ceiling that had been installed for retail use. Photo:
Hunter Kerhart
2013 - A look from the end of the ticket lobby through the inner lobby space to
the stage. In 1913 there was a standee rail in line with the columns.
It was made into a solid wall with doors added when the house went to
movies. That was removed after the theatre closed in the 80s. Photo:
Hunter Kerhart
2014 - Looking toward Broadway from the former island boxoffice location. Photo: Hunter Kerhart
2014 - A view from deeper in the space. Photo: Hunter Kerhart
2014 - Note the octagonal molding around the fixture boxes seen in the previous
photo. These are probably the fixtures once there. At the time of the
photo, these were up on the 4th floor of the Garland Building. Other smaller
fixtures of the same style (along with a few 40s Skouras-style
monstrosities) were found in the basement. Photo: Bill Counter
2014 - Another look at one of the lobby fixtures. Photo: Bill Counter
2014 - A south wall detail. We're at the inner end of the space. The original entrance doors would have been to the right of the mirror. Photo: Hunter Kerhart
2014 - A south wall plaster detail. Note the later deco design wallpaper in the bay at the right. Photo: Bill Counter
2014 - Another south wall detail, here looking at two of the bays with drywall, not original plaster. Thanks to Sandi Hemmerlein for her photo. It's one of many fine views appearing with her Avoiding Regret photo essay "
The Globe Theatre Under Construction."
2014 - A section of the 1913 mosaic tile floor reappears. Thanks to Eric Choll, the Globe's proprietor from 2014 to 2024, for his photo. Erik and his associates worked down through a hundred years of grime and glue to investigate the building's original finishes.
2014 - The lobby's tile floor revealed after many, many hours of work. Photo: Hunter Kerhart

2014 - At the Broadway end of the space looking toward the stage. The
30s vintage entrance doors part way into the space were long gone. Photo: Hunter Kerhart
2014 - Installing the new mirrors. Thanks to Erik Chol for the May photo.
2014 - The ticket lobby's first public appearance since the 1980s
was the night of the marquee relighting ceremony on June 24. At that
time the rest of the theatre was still off limits as construction was
underway and an occupancy permit was lacking. Thanks to Stephen Russo
for his photo taken that night. It appeared on the
LAHTF Facebook page.
The Los Angeles Historic Theatre Foundation is actively involved in the
study and preservation of the vintage theatres in the L.A. area. The
group frequently supports events and offers tours of the buildings.
www.lahtf.org |
group Facebook page |
official FB page
2015 - Thanks to Elizabeth Daniels for this view from Broadway, a photo that appeared with "
Touring the Secret Passages of Broadway's 101-Year-Old Globe...," Bianca Barragan's January Curbed L.A. story about the progress of the project. The article once included 33 photos by Ms. Daniels.
2015 - The lobby during the January "Night on Broadway." Thanks to Mike Hume for his photo. For a treat, see the page about the Globe on his
Historic Theatre Photography site.
2015 - Checking out the mirrors at the "Night on Broadway." It's a Zachary Pincus-Roth photo on Instagram that was originally part of Bianca Barragan's L.A. Curbed article: "
Stunning Looks Inside 7 of Broadway's Seldom Seen Theatres."
2015 - A look toward Broadway after entrance doors and bar area had been installed. Thanks to Wendell Benedetti for his July photo, added as a comment to a post of his on the
LAHTF Facebook page.
2015 - The new entrance doors as viewed from Broadway.
Thanks to Wendell Benedetti for his July photo on the
LAHTF Facebook page.
2017 - A north wall view looking toward Broadway. Photo: Mike Hume
2018 - The lobby during the January "Night on Broadway" event. Photo: Mike Hume
2020 - Looking toward the auditorium in March during the annual meeting of the Los Angeles Historic Theatre Foundation, hosted here courtesy of Erik Chol and his staff. Photo: Bill Counter
2020 - A view to the street. Photo: Bill Counter
2020 - Broadway as seen from outside the theatre's doors. Photo: Bill Counter
2025 - The new lighter look with red accents with the gold instead of the previous black. The event was a September 18 preview before the October reopening that was co-hosted by the theatre's longtime owner and (new) operator Houman Sarshar along with the
Downtown Los Angeles Residents Association. Photo: Bill Counter
The inner lobby:
1976 - The inner lobby when the area was walled off from the auditorium. It's a shot from the Peter Hyams 20th Century Fox film "Peeper." That's Michael Caine heading up the house right stairs. The manager, on the right, is going to chase him around the building to try to get him to buy a ticket.

1976 - Caine going in to the house right aisle in a shot from "Peeper." The stairs get you up to the 1st balcony level but not on to the 2nd. There are separate stairs accessed in the exit passages north and south of the theatre for that. Originally there was an entrance from Broadway at the south end of the facade. See the
Historic L.A. Theatres in Movies post for more shots from the film.
c.2010 - The house right stairs in the Club 740 days. Thanks to
The Location Portal for the photo, one that used to be on their page about the theatre. The firm brokers deals with property owners for those looking for venues for filming or special event uses.
c.2010 - The inner lobby during the Club 740 setup. At the time of the photo the ticket lobby (behind the bar) was walled off from the theatre and was being used for retail. The club's entrance was through the alley. Photo:
The Location Portal
c.2010 - A wider view toward the inner lobby spaces as they were set up for Club 740. Photo:
The Location Portal
2013 - The opened up lobby areas as seen from the middle of the auditorium. At the end of the ticket
lobby there's a bit of light coming in from Broadway. Photo: Hunter
Kerhart
2013 - The house left stairs as viewed from what once was about three rows from
the back of the seating area. It would have ended at the columns. Note
on the floor near the left column an indication of where an aisle had
been. Photo: Hunter Kerhart
2013 - The house left end of the inner lobby with a view of the area where a later ceiling had been removed. Photo: Hunter Kerhart
Go out the exit door and down
under the balcony stairs and you're at the ladies lounge or you can
continue to the club space in the former plenum under the auditorium. See photos of those areas on the page about the
basement.
You can also exit to a passageway along the north side of the theatre. Views of the two exit passages are on the
recent exterior views page.
2013 - The house right end of the inner lobby and the ticket lobby as viewed
from the auditorium. That's the front of the 1st balcony at the top of
the photo. Photo: Hunter Kerhart
2013 - In the inner lobby looking up at 80s vintage decking. Photo:
Hunter Kerhart
At
the bottom of the photo we look out to original plasterwork in the
ticket lobby leading to Broadway. Above us in the inner lobby, all the
original ceiling had been removed. Not just here in the center but above the stairs on either side as well. The decking was installed to
level out the first balcony. Except for a bit on either side, the risers
above the crossaisle were removed and replaced by a flat floor.
2013 - The house right side of the inner lobby showing part of the area of ceiling demo. In 1913 the entrance doors would have been at the far right edge of the image. On the line of the columns it was an open
standee rail, later becoming a full-height wall. Photo: Hunter Kerhart
2013 - Restoration work on the stairs. It was a long process getting down to the original 1913 marble after removing layers of carpet, pad, paint and grime. Photo: Erik Chol
2014 - Another look to house right. Note the missing ceiling above. Take the stairs up and you're in the 1st balcony. The doors at the boxed-in end of the lobby, a later addition, go out to an exit passageway and to stairs down to the basement men's room. Photo: Hunter Kerhart
2014 - The stairs to the basement men's room, house right. Photo: Sandi Hemmerlein
2014 - Up to the landing house right. Photo: Sandi Hemmerlein
2014 - From the landing looking into the house right side of the 1st balcony. Photo: Bill Counter
2014 - The view back down to the landing. Photo: Bill Counter
2014 - The house right stairs. The stairs to the men's room are directly below. Photo: Bill Counter
2014 - Looking into the void of the missing inner lobby ceiling. Photo: Bill Counter
2014 - A view forward at the structure of the 1st balcony. The new-ish decking is at the rear of the 1st balcony where the original seating risers got removed and the area leveled. Photo: Bill Counter
2014 - Looking across to house left. A left under the stairs over there gets you down to the ladies room and into the club space in the plenum. Photo: Hunter Kerhart
2014 - Looking out toward Broadway from the inner lobby. In 1913 the entrance doors would have been on the line of that decorative pilaster to the right of the mirror. Photo: Hunter Kerhart
2014 - A closer look at the underside of the concrete encased beam seen in the previous photo. The plaster seen at the bottom of the photo is the beginning of the decorative ceiling in the ticket lobby. Photo: Bill Counter
2014 - The view down the house left stairs. Photo: Bill Counter
2014 - A look toward Broadway in January. Photo: Hunter Kerhart
2014 - Looking toward the stage in April. Note the new steel stud framing overhead to fill in missing inner lobby ceiling. Thanks to Hunter Kerhart for this photo and the many others appearing on these pages. Keep up with his recent explorations:
HunterKerhart.com |
on Flickr
2014 - House right in June after the ceiling had been filled in and work had begun on a new bar area. Thanks to Rebecca Reynoso of
Cap Equity Locations [323-375-4192] for this and other photos appearing on these pages. The firm brokers deals between property owners and those looking for filming locations or other special uses.
2014 - House left as work continued in June. Photo: Cap Equity Locations
2014 - Looking down the house left stairs. Photo: Cap Equity Locations
2015 - The stage from the inner lobby. Note the new ceiling overhead. Thanks to Elizabeth Daniels for her photo, one that appeared with a January article on
Curbed L.A.
2020 - The house right stairs with a bit of the ticket lobby on the far right. Photo: Bill Counter
2020 - A view up to the house right landing. Photo: Bill Counter
2020 - A peek into the 1st balcony. Photo: Bill Counter
2020 - A view from the house right landing. It's a photo taken in March during the LAHTF annual meeting. Photo: Bill Counter
2020 - Looking toward house left. The gentleman on the right taking a photo is LAHTF board member Wendell Benedetti. Photo: Bill Counter
2020 - The view from the house left landing. Photo: Bill Counter
2025 - Looking into the house from what originally was the standee area. Seats started just the other side of the column. It was early in the evening, before a September 18 preview event to celebrate the theatre's reopening. Photo: Bill Counter
2025 - A look back toward the ticket lobby. Note the new lighter red and gold decorating scheme. Photo: Bill Counter - September 18
2025 - The view down from the house right stairs. Photo: Bill Counter - September 18
The Globe Theatre pages: history |
vintage exterior views |
recent exterior views |
back to top - lobby areas |
recent auditorium views |
earlier auditorium views |
attic |
backstage |
basement |
garland building |
early Morosco programs |
|
Downtown: theatre district overview |
Hill St. and farther west | Broadway theatres | Spring St. theatres | Main St. and farther east | downtown theatres by address | downtown theatres alphabetical list |
| Westside | Hollywood |
Westwood and Brentwood |
Along the Coast |
[more] Los Angeles movie palaces |
the main alphabetical list | theatre history resources | film and theatre tech resources | theatres in movies | LA Theatres on facebook | contact info | welcome and site navigation guide |
No comments:
Post a Comment